top of page
![]() | ![]() | ![]() |
|---|---|---|
![]() | ![]() | ![]() |
![]() | ![]() | ![]() |
![]() | ![]() | ![]() |
![]() | ![]() | ![]() |
![]() |
RESIDENTIAL DESIGN
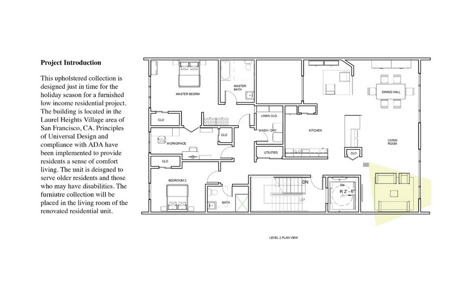
This project is a three storey condominium of which the first two floors are allotted low income housing units and the third level is occupied by the Moriotto family. The below post is a custom furniture collection (with fabric analysis) created for the 2nd level low-income unit.
bottom of page

























